The Grove Single Family subdivision project is located in the heart of Naples within the Bayshore Arts District, just minutes from 5th Avenue and the Naples beaches. The project consists of a total of 32 single family lots over 9 acres. The new community will feature large modern two story homes. The garages will be accessed through an alleyway in the rear of the homes to allow for high end primary facades on each of the home models. The community is located in the Bayshore Arts District. Boral Engineering, Inc. is responsible for the entire civil engineering design and site permitting of the project.
The Civitas Multifamily Development project is located along Pine Island Blvd in Cape Coral. The project consists of a total of 96 apartment units and a community center for the local Boys and Girls club to offer after school programs. Boral Engineering, Inc. is responsible for the complete civil engineering and design of the project. The project is green building certified under the national rating system. The project is the City of Cape Coral's first affordable housing project in over twenty years.
The Immokalee Fair Housing Alliance Residential project is located along Lake Trafford Road in Immokalee. The project includes 130 housing units and associated paving, drainage and utility infrastructure on 10 acres. The project will also include a clubhouse, laundry building, basketball court, lake, and park area. Boral Engineering, Inc. is responsible for engineering and design of the site. The vision of the project is to provide affordable, quality, low maintenance, and hurricane resistance housing for migrant farm worker families who are currently living in adverse conditions.
The Riverside Club Townhomes project is located along Big Bend Road in Bonita Springs in Lee County. The project includes 30 multi-family units and associated paving, drainage and utility infrastructure. Boral Engineering, Inc. is responsible for the design and engineering for this residential development. The project will provide beautiful housing conveniently located by the Imperial River, just a few minutes away from the Bonita beaches.

The Hibiscus Multifamily Development project is located in Fort Myers. The project includes 126 luxury condominium units in a three story building over covered parking. Road, drainage and utility infrastructure improvements are also part of the project. Boral Engineering, Inc. is responsible for the design and engineering for this residential development to include Lee County, City of Cape Coral and South Florida Water Management District Environmental Resource Permit.

The Old Burnt Store Estates is a single family subdivision located in Northeast Cape Coral just South of the Burnt Store Marina. The project site is approximately 20 acres and will feature large single family lots with private boat docks and amenities. The project includes over 1000 LF of paved roads and associated drainage and utility infrastructure. Boral Engineering, Inc. is responsible for the design, engineering and permitting for the project to include: City of Cape Coral PDP, Site Plan Permit.

The Arcadia Multifamily Development project is located in Desoto County. The project includes a total of 28 two and three bedroom apartments and associated paving, drainage and utility infrastructure. Boral Engineering, Inc. is responsible for the design and engineering for this residential development to include Desoto County Site Development Permit and the Southwest Florida Water Management District Environmental Resource Permit.


The Ybor Mixed Use project is located in the Bayshore Arts District in Naples. The site is along the pedestrian oriented redevelopment corridor all will feature restaurants, professional office, and retail shoppes on the first level, and residential condominium units on the second and third level. A rooftop bar and restaurant is also part of the project. Boral Engineering, Inc. is responsible for the design, engineering and permitting for the project to include Collier County and City of Naples Utilities.

The Bayshore Mixed Use project is located in the Bayshore Arts District in Naples along the creek in front of Celebration Park. The project proposes over 100,000 SF of floor area and will become the most prominent development within the redevelopment corridor. A 3 story parking garage is also part of the project which will provide over 300 parking spaces to serve this project and surrounding developments. The first level will feature a dining hall with multiple specialty restaurants and waterfront deck. The second and third level will feature residential condominiums with 4 car garages. Boral Engineering, Inc. is responsible for the design, engineering and permitting for the project to include: Collier County, City of Naples Utilities and South Florida Water Management District.

The Shadroe Lake Airbnb Resort project is located Cape Coral on Shadroe Lake. The project includes a total of 48 units and associated paving, drainage and utility infrastructure. The project will serve as a vacation rental resort and includes a commercial outparcel for a restaurant. Boral Engineering, Inc. is responsible for the design and engineering of the entire development to include City of Cape Coral Site Development Permit and the South Florida Water Management District Environmental Resource Permit.


The Del Prado Commercial Plaza is located along Del Prado Blvd North in Cape Coral. Totaling over 42,000 SF of building area on over 5 acres of land, the commercial plaza will feature lake waterfront restaurants and a 10,000 SF outdoor dining deck. The project will also feature retail and professional office space. Boral Engineering, Inc. is responsible for the complete site design, engineering and permitting for the project to include Lee County DOT, Florida Department of Environmental Protection, City of Cape Coral, South Florida Water Management District and the DOH.

The Sandbox Volleyball Complex is located in Fort Myers along Pondella Road. The project features 8 volleyball courts, a restaurant with outdoor dining and large hardscape areas for special events and competitions. The site will feature a total of 125 parking spaces on 3.5 acres of land. The project also included the design of associated drainage and utility infrastructure improvements. Boral Engineering, Inc. is responsible for the complete site design, engineering and permitting for the project to include: Lee County, North Fort Myers Review Panel, South Florida Water Management District and the DOH.

The Daniels RV & Boat Storage project is located in unincorporated Lee County just west of the existing Jet Blue Park on Daniels Road. The project site is located within and industrial subdivision and is over 3 acres. The project will include over 100 storage spaces totaling over 60,000 SF of building area along with an office building and associated paving, drainage and utility infrastructure. Boral Engineering, Inc. is responsible for the design, engineering and permitting for the project to include: Lee County Development Order, Lee County Utilities Permit and Southwest Florida Water Management District Environmental Resource Permit.

The Nor-tech Boats manufacturing facility is located within the Lee County industrial subdivision in Cape Coral. The project includes a total of 35,000 SF of warehouse and office space and associated paving, drainage and utility infrastructure. Boral Engineering, Inc. is responsible for the design, engineering and permitting for the project to include: City of Cape Coral Site Plan Permit and South Florida Water Management District Environmental Resource Permit.

The New Post Self Storage facility is located in Fort Myers and features over 115,000 SF of building on approximately 3 acres of land. The project includes close to 1 acre of associated paving as well as drainage and utility infrastructure improvements. The project also included the rezoning of the property from Agricultural to Commercial. Boral Engineering, Inc. is responsible for the complete site design, engineering and permitting for the project to include: Lee County, North Fort Myers Review Panel and the South Florida Water Management District.

The Windward Drive Warehouses project is located on the northern side of Marco Island on Windward Drive within the City's industrial park. The project includes a 7-unit warehouse building and associated paving, drainage and utility infrastructure. The units will range from 1,685 SF to 2,095 SF. Boral Engineering, Inc. is responsible for the design, engineering and permitting for the project to include: The City of Marco Island and Marco Island Utilities. This project will add highly demanded indoor storage to Marco Island property owners.

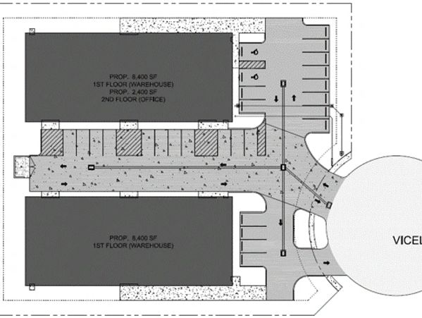
The Aguatech Warehouses project is located in unincorporated Sarasota County just a few miles East of I-75 off of Fruitville Road. The project site is located within the Paleo Park industrial subdivision. The project includes 2 buildings with 16,800 SF of warehouse space and 2,400 SF of office and associated paving, drainage and utility infrastructure. Boral Engineering, Inc. is responsible for the design, engineering and permitting for the project to include: Sarasota County Site Plan Permit and Southwest Florida Water Management District Environmental Resource Permit.

The Arby’s restaurant project is located along U.S. Highway No. 301 (State Road 43) within a commercial subdivision. Riverview is southeast of Tampa and east of I-75 in Hillsborough County. The project includes a 2,320 SF restaurant building and associated paving, drainage and utility infrastructure. Boral Engineering, Inc. is responsible for the design, engineering and permitting for the project to include: FDOT, Hillsborough County, Southwest Florida Water Management District and the DOH.
The Taco Bell restaurant project is located along U.S. Highway No. 17 within a commercial subdivision. Wauchula is in Hardee County, which is east of Bradenton. The project includes an 1,888 SF restaurant building and associated paving, drainage and utility infrastructure. Boral Engineering, Inc. is responsible for the design, engineering and permitting for the project to include: FDOT, Hardee County, SWFWMD and Wauchula Utilities. This project is one of several Taco Bell restaurants that Boral Engineering has recently designed in South Florida.

The Rick Johnson Auto & Tire project is located along Jones Loop Road in Port Charlotte. The project includes a 6,000 SF building and associated paving, drainage and utility infrastructure. Boral Engineering, Inc. is responsible for the design, engineering and permitting for the project to include: Charlotte County and Punta Gorda Utilities. The Port Charlotte project is one of many projects along the Southwest Florida corridor designed and permitted over the last 12 months for Rick Johnson Auto & Tire.

The Royal Scoop Ice Cream Factory and Shop project is located along Bernwood Drive, adjacent to Old U.S. 41 within the Bernwood commercial subdivision. The project includes a 14,011 SF two story building (12,669 SF factory and 1,342 SF shop) and associated paving, drainage and utility infrastructure. Boral Engineering, Inc. is responsible for the design, engineering and permitting for the project to include: City of Bonita Springs, Bonita Springs Utilities, and the South Florida Water Management District.
The Waffle House restaurant project is located along U.S. Highway No. 1 (State Road 5) within a commercial subdivision. Florida City is the southernmost municipality in the South Florida metropolitan area and is in Miami Dade County. The project includes a 1,635 SF restaurant building and associated paving, drainage and utility infrastructure. Boral Engineering, Inc. is responsible for the design, engineering and permitting for the project to include: FDOT, Miami Dade County, DERM and Florida City. The Waffle House restaurant in Florida City is 1 of 6 projects designed and permitted in South Florida in the last 18 months.
